Trilocale in vendita

Torino, Corso Cesare Correnti - Via Barletta
€ 185.000
3 locali 3 locali
80 Mq 80 Mq
1 bagno 1 bagno

Trilocale in vendita

Torino, Corso Cesare Correnti - Via Barletta

Descrizione annuncio

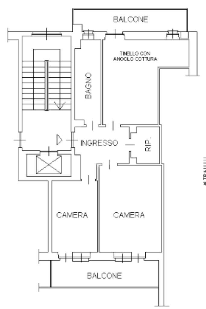
In elegante stabile con ascensore, proponiamo in vendita pratico trilocale ristrutturato nel 2020, situato in zona servita e a pochi passi dai giardini pubblici.L’appartamento, ben distribuito e pronto da abitare, è composto da:ingresso che disimpegna tutti gli ambienti,cucina abitabile con angolo cottura e balcone,camera matrimoniale e cameretta con balcone in comune,bagno finestrato con doccia in cristallo,ampio ripostiglio adibito a cabina armadio.Dotazioni e comfort:portoncino blindato con spioncino elettronico,predisposizione per aria condizionata,infissi vasistas con zanzariere,possibilità di acquisto cucina Snaidero su misura e/o sistema di antifurto Verisure.Soluzione ideale per chi cerca una casa moderna, funzionale e in contesto signorile.
Mostra tutto

Nelle vicinanze

Trasporto pubblico Trasporto pubblico
Pozzo Strada
Pozzo Strada
2,6 Km
Monte Grappa
Monte Grappa
2,6 Km
Monte Cucco
Monte Cucco
1,4 Km
Serao
Serao
1,4 Km
Siracusa
Siracusa
90 m
Ricariche auto elettriche Ricariche auto elettriche
RSA Grangia - Via Ada Negri | Duferco
810 m
Bluetorino Tripoli
1,2 Km
BECHARGE BENNET Centro Commerciale Millecity Center
2,6 Km
Bluetorino Politecnico
2,6 Km
Bluetorino Fidia
2,6 Km
Scuole Scuole
Liceo artistico statale Renato Cottini
160 m
Scuola primaria Leone Sinigaglia
490 m
Scuole
510 m
Scuola Media Statale Ada Negri
570 m
Scuola Primaria "Leone Sinigaglia"-plesso "Montale"
710 m
Farmacia Farmacia
Farmacia Santa Silvia
260 m
Farmacia Comunale
440 m
Farmacia
550 m
Farmacia Giaccone
600 m
San Pietro
610 m
Ospedali Ospedali
LARC
510 m
Ospedali
1,6 Km
Ospedale Martini
1,7 Km
Ospedale Martini - Emergency
1,7 Km
Ospedale Mauriziano
2,5 Km
Supermercati Supermercati
Max Factory
40 m
Carrefour Market
490 m
Lidl
530 m
Pam
660 m
Mercatò
700 m
Negozi Negozi
Caseificio Rosario
650 m
Negozi
970 m
Delper
1,0 Km
L'arte della bontà
1,2 Km
Antica Bottega
1,2 Km
Bar Bar
Coffee Black
660 m
Bar
700 m
Grom - Gelateria
1,2 Km
Cristall
1,2 Km
Mon Soleil
1,3 Km
Ristoranti Ristoranti
Capitol
370 m
Pizzeria Tre Scalini
410 m
Ai 4 assi
440 m
San Giorgio
800 m
Miseria e nobiltà
850 m
Mostra tutto

Caratteristiche

Rif.:
61143339
Piano:
1 di 9 con ascensore (Piano basso)
Balconi:
2
Camere da letto:
2
Arredamento:
Assente
Condizionamento:
Predisposizione impianto
Mostra tutto
Prezzo Prezzo
€ 185.000
Rata mutuo Rata mutuo
€ 862 / mese
Spese annue Spese annue
€ 76.241
Proponi il tuo prezzoProponi il tuo prezzo

Classe Energetica

E
E
E
E
E
E
E
E
E
EP globale non rinnovabile:
126.26 kW h/m² anno
EP globale rinnovabile:
0.00 kW h/m² anno
EP invernale del fabbricato:
EP estiva del fabbricato:
Anno di costruzione:
1960
Riscaldamento:
Centralizzato
Tipo impianto:
A radiatori
Tipo alimentazione:
Metano

Ti interessa visionare l'immobile?

Fissa un appuntamento  Fissa un appuntamento

Richiedi informazioni

* Questi campi sono obbligatori

Calcola il tuo mutuo

Semplice e senza impegno
Anticipo

( % )
Mutuo

( % )

pochi semplici passi

inserisci i tuoi dati
Questionario completato
Grazie per aver richiesto un appuntamento senza impegno con un nostro Consulente del Credito e Assicurativo.

Hai inserito correttamente tutti i dati necessari e a breve riceverai una e-mail con un link da convalidare per inviare i tuoi dati.
Affiliato
Studio Santa Rita 1 Sas
Via Barletta, 121/A 10136 Torino (TO)

Il nostro staff


  • Stefania Carella
    Coordinatrice

  • Alessandro De Cunsolo
    Responsabile

  • Erica Dattesi
    Coordinatrice

  • Roberto Pidatella
    Collaboratore

  • Lorenzo Iorio
    Affiliato

  • Giovanni Santarelli
    Collaboratore
Via Barletta, 121/A 10136 Torino (TO)
Zona: Santa Rita - Corso Siracusa
Mostra su mappa
Orari: Dal lunedì al venerdì: 9.00/12.30 - 15.00/20.00. Sabato: chiusura 13.00
Affiliato
Studio Santa Rita 1 Sas
Via Barletta, 121/A 10136 Torino (TO)

2025 Tecnocasa Franchising S.p.A. - P. IVA 08365160152 - Via Monte Bianco 60/A 20089 Rozzano (MI). Ogni agenzia ha un proprio titolare ed è autonoma. Privacy policy | Policy utilizzo | Cookie policy